株式会社丸太不動産
〒471-0024 愛知県豊田市元城町2丁目8-2
TEL:0120-32-0589(フリーダイヤル)
TEL:0565-31-0589
FAX:0565-31-7467
営業時間: 8:30~18:00
休日: 年末年始、夏期、その他不定期
建築条件付土地
No.3区画1,892万円
物件の詳細情報はこちら
物件所在地:豊田市花本町宇津木197-3
土地面積:162.34m2(49.10坪)
地目:宅地
交通:名鉄三河線「越戸」駅 約500m
学校:青木小学校・猿投台中学校

東北角地の整形地でプランを配置しやすい形状です。

北・東の二方向に面しているので、間取りの自由度が高い土地です。


建物は長期優良住宅およびZEHをご提案させていただきます。弊社の建物に関しては施工事例をご覧ください。また、この土地への参考プランもご用意しております。ご検討の材料としていただければ幸いです。
参考プラン
ご検討材料として3例のプランをご紹介します。広々4LDKのAプランとコンパクトな3LDKのBプラン、ガレージハウスのCプランです。
Aプラン
シンプルなレイアウトが住みやすさにつながる4LDKのプランです。
外観イメージ

リビングダイニングの南側には広々としたガーデンスペースがあり、お出掛け気分で楽しく遊べます。駐車スペースは3台分で来客時も安心です。
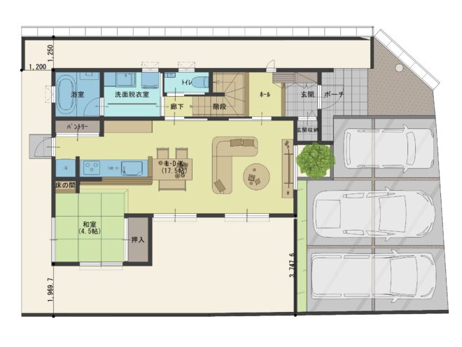
配置図・1階平面図

団らんの中心となるリビングダイニングは掃き出し窓で南側の庭へも出入りでき、ガーデニングやアウトドアも楽しめます。キッチンとダイニングテーブルをストレートに並べることで支度や片付けの時間短縮となります。
キッチン南には茶の間風の和室があるので、客間や日常の団らん、お子様のお昼寝にも便利です。
少し広めの洗面室は洗濯物干し場を兼ねていますので、雨の日などは重宝します。
2階平面図

主寝室前の広いバルコニーは開放的なスペースでアウトドアテラス感覚でいかがでしょう。もちろん晴れた日には洗濯物干し場としても最適です。各室の収納も十分に確保しています。
室内イメージ




Bプラン
西側に駐車スペースを設け隣棟間隔を確保したプライバシー重視の3LDKです。
外観イメージ

東北角地の敷地の上、西側に3台分の駐車スペースをとることでどの方向からも一定の距離がありプライバシーも安心です。バルコニーは大部分に屋根があるため、少々の雨程度なら洗濯物も濡れません。
配置図・1階平面図

ポーチは軒が深くお出かけや帰宅時に雨が降っていても濡れずに出入りできます。コンパクトな玄関ですが土間収納もありすっきりとした玄関で来客を迎えます。1ルームのLDKが家族の自然な会話を促します。3畳大の洗面室は洗濯物干し場にもなります。
2階平面図

8畳大の主寝室にはウォークインクローゼットとバルコニーがあり、ゆったりと過ごせます。子供部屋も南向きにあり明るい光が差し込みます。
室内イメージ




Cプラン
ガレージを組み込んだプランです。
外観イメージ

ガレージと玄関がつながるように配置しました。車やオートバイが趣味の方だけでなく、子育て世帯やEVの充電にもガレージは便利です。
配置図・1階平面図

ガレージハウスは贅沢と思っている方もいるかもしれませんが、子どもの乗り降りや荷物の出し入れも、玄関からすぐにできる便利さが魅力です。また徐々に普及しているEVの充電設備も天候による劣化や漏電の心配もなく安心です。
19畳大のLDKではリビングにガレージを眺める大きな窓があります。
2階平面図

コンパクトながらしっかりと収納も設けた寝室と子供部屋です。
室内イメージ






あくまでも参考プランです。ご希望に応じてご提案させていただきます。また建物の設備仕様や建築時期により資材コストが変わりますので、建物金額につきましてはお気軽にお問い合わせください。掲載してある面積表は間取り図から算出したものですので、建築確認申請書や登記のものと異なる場合があります。
物件パンフレットはこちらから(PDF)
売主
株式会社丸太不動産
〒471-0024 愛知県豊田市元城町2丁目8-2
TEL:0120-32-0589(フリーダイヤル)
TEL:0565-31-0589
FAX:0565-31-7467
営業時間: 8:30~18:00
休日: 年末年始、夏期、その他不定期